Architectural and constructive design of an industrial
Sold <10
0 000 X
There are no such quantities in stock
By clicking the button, you agree to
terms for buyers
Secure deal
Instant delivery
Product description
3 sheets A1 of the graphic part + 28 sheets A4 of the explanatory note
Main features
- Content type File
- Content description 960,16 kB
- Updated on the site 25.12.2017
Additional description
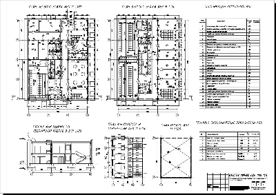
Lis 1: Facade of the M 1: 200 building complex, Longitudinal section of the production building 2-2 M 1: 200, M 1: 200 production building plan, Master plan with wind rose M 1: 2000, Explication of buildings and structures, Balance of territory.
Sheet 2: Cross section of the production building 1-1 M 1: 200, Constructive section of the ABK on the wall M 1:25, Construction section of the production building on the wall M 1:25, Layout and roofing of the production building 1: 400, Layout of the foundations of the production building 1: 400, Technical and economic indicators of the production building.
Sheet 3: Plan of the first floor of ABK M 1: 100, Plan of the second floor of ABK M 1: 100, explication of the premises of ABK, Section of ABK of the building in the staircase M 1: 100, Layout of the foundation and floors of ABK M 1: 200, 1: 200, Technical and economic indicators of ABA.
The contents of the explanatory note:
1. Original design data
2. Description of climatic conditions of the construction area
3. Description of the master plan, balance of the territory
4.Proizvodstvennoe building
4.1. Quantitative-planning solution
4.2.Architectural and constructive solution (with sketches of structural elements)
4.2.1. Foundations and foundation beams
4.2.2. Columns of the main frame and half-timbered frame
4.2.3. Pod crane beams
4.2.4. Stringing and undergrowth constructions
4.2.5. Lights
4.2.6. The communication system
4.2.7. Coating plates
4.2.8. The construction of the roof (with the thermal calculation of the cover and the calculation of the number of drainage funnels)
4.2.9. External walls (with thermo-technical calculation of the thickness of wall panels)
4.2.10.Explanation of floors
4.2.11. Doors, gates
4.2.12. Work platforms, stairs
4.3.External and internal finishing
4.4.engineering networks
4.5.Techniko economic indicators of a production building
Calculation of the area of light holes
5. Administrative and household building
5.1. Calculation of ABA based on the number of workers in the shop
5.2. Volume-planning decision of ABC
5.3.Architectural and constructive decision of ABK (with sketches of structural elements)
5.3.1. Foundations and foundation beams
5.3.2. Structure of the framework according to the AI-04 series (columns, crossbars, slabs, stiffening diaphragms)
5.3.3. The construction of the roof (with thermo-technical calculation of the thickness of the insulation)
5.3.4. External walls (with thermo-technical calculation of thickness of wall panels) and internal partitions
5.3.5.Explanation of floors
5.3.6. Windows, doors
5.4. Outer and inner decoration
5.5. Engineering networks
5.6.Technico economic indicators ABA
Download the sample: http://pgsfiles.ru/engine/download.php?id=92
Note: The file format is RAR archive [960,15 Kb]: Drawings in the format: DWG - Autodesk AutoCAD + Explanatory note in the format: DOC - Microsoft Office Word
Sheet 2: Cross section of the production building 1-1 M 1: 200, Constructive section of the ABK on the wall M 1:25, Construction section of the production building on the wall M 1:25, Layout and roofing of the production building 1: 400, Layout of the foundations of the production building 1: 400, Technical and economic indicators of the production building.
Sheet 3: Plan of the first floor of ABK M 1: 100, Plan of the second floor of ABK M 1: 100, explication of the premises of ABK, Section of ABK of the building in the staircase M 1: 100, Layout of the foundation and floors of ABK M 1: 200, 1: 200, Technical and economic indicators of ABA.
The contents of the explanatory note:
1. Original design data
2. Description of climatic conditions of the construction area
3. Description of the master plan, balance of the territory
4.Proizvodstvennoe building
4.1. Quantitative-planning solution
4.2.Architectural and constructive solution (with sketches of structural elements)
4.2.1. Foundations and foundation beams
4.2.2. Columns of the main frame and half-timbered frame
4.2.3. Pod crane beams
4.2.4. Stringing and undergrowth constructions
4.2.5. Lights
4.2.6. The communication system
4.2.7. Coating plates
4.2.8. The construction of the roof (with the thermal calculation of the cover and the calculation of the number of drainage funnels)
4.2.9. External walls (with thermo-technical calculation of the thickness of wall panels)
4.2.10.Explanation of floors
4.2.11. Doors, gates
4.2.12. Work platforms, stairs
4.3.External and internal finishing
4.4.engineering networks
4.5.Techniko economic indicators of a production building
Calculation of the area of light holes
5. Administrative and household building
5.1. Calculation of ABA based on the number of workers in the shop
5.2. Volume-planning decision of ABC
5.3.Architectural and constructive decision of ABK (with sketches of structural elements)
5.3.1. Foundations and foundation beams
5.3.2. Structure of the framework according to the AI-04 series (columns, crossbars, slabs, stiffening diaphragms)
5.3.3. The construction of the roof (with thermo-technical calculation of the thickness of the insulation)
5.3.4. External walls (with thermo-technical calculation of thickness of wall panels) and internal partitions
5.3.5.Explanation of floors
5.3.6. Windows, doors
5.4. Outer and inner decoration
5.5. Engineering networks
5.6.Technico economic indicators ABA
Download the sample: http://pgsfiles.ru/engine/download.php?id=92
Note: The file format is RAR archive [960,15 Kb]: Drawings in the format: DWG - Autodesk AutoCAD + Explanatory note in the format: DOC - Microsoft Office Word
Images
Reviews
No reviews yet
0 000 X
There are no such quantities in stock
By clicking the button, you agree to
terms for buyers
Secure deal
Instant delivery